Gemütliches Reihenhaus mit Garten in ruhiger Lage
13469 Berlin, Reihenhaus zum Kauf
Kontaktdaten
-
NameFrau Daniela Rainoff
-
FirmaRainoff Immobilien
-
E-Mail
-
Telefon
Objektdaten
-
Objekt-ID161785189
-
ObjekttypenHaus, Reihenhaus
-
Adresse13469 Berlin
-
Etagen im Haus2
-
Wohnfläche ca.55 m²
-
Nutzfläche ca.65 m²
-
Grundstück ca.153 m²
-
Zimmer3
-
Schlafzimmer2
-
Badezimmer2
-
Wesentlicher EnergieträgerÖl
-
Baujahr1961
-
Zustandgepflegt
-
Außenstellplatz1
-
Käuferprovision3,57 % inkl. MwSt.
3,57 % inkl. gesetzlicher Mehrwertsteuer und ist bei notariellem Vertragsabschluss fällig. -
Kaufpreis299.000 EUR
Ausstattung / Merkmale
- ✓ Garage
- ✓ Gäste-WC
- ✓ Keller
Energieausweis
-
EnergieausweistypBedarfsausweis
-
Gültig bis07.11.2035
-
GebäudeartWohngebäude
-
Baujahr lt. Energieausweis1961
-
PrimärenergieträgerÖl
-
Endenergiebedarf250,00 kWh/(m²·a)
-
Warmwasser enthaltenja
-
EnergieeffizienzklasseH
Objektbeschreibung
Beschreibung
Dieses charmante Reihenhaus aus dem Baujahr 1961 bietet auf ca. 55 m² Wohnfläche ein gemütliches Zuhause mit viel Entwicklungspotenzial.
Das Haus befindet sich auf einem ca. 153 m² großen eigenen Grundstück (Flurstück) in Berlin-Lübars.
Zusätzlich bestehen Miteigentumsanteile an den gemeinschaftlich genutzten Flächen (Zuwegung und Grünanlagen), wie es in der gesamten Siedlung üblich ist.
Der private Garten bietet mit ca. 100 m² ausreichend Platz für Erholung im Grünen (die genaue Größe wird durch den aktuellen Katasterauszug noch bestätigt).
Es eignet sich ideal für Paare, kleine Familien oder auch als Alternative zur Eigentumswohnung.
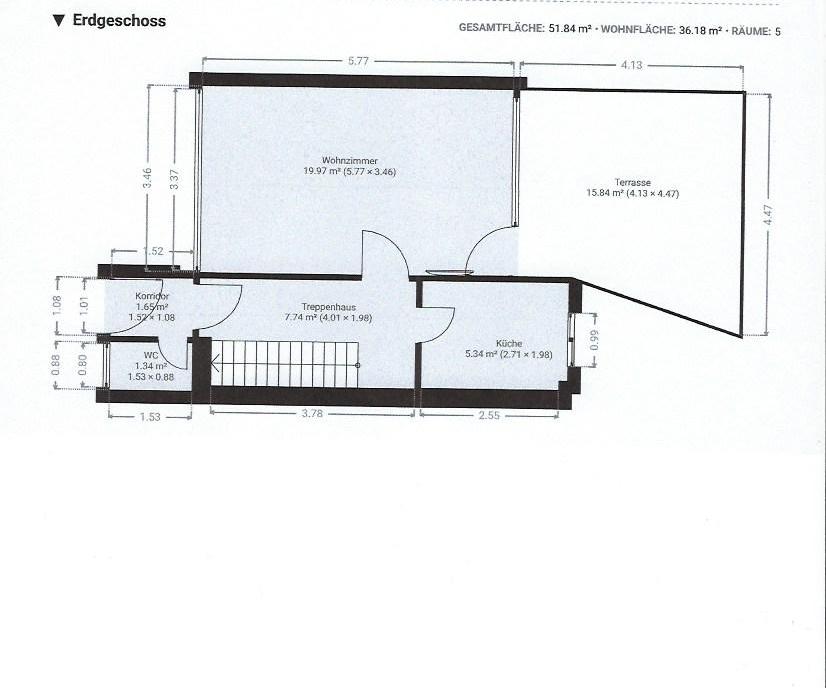
Das Erdgeschoss erwartet Sie ein helles Wohnzimmer mit großem Fenster und direktem Zugang zur Terrasse und in den Garten.
Hier genießen Sie den Blick ins Grüne und haben Platz für gesellige Stunden im Freien.
Eine separate Küche sowie ein Gäste-WC komplettieren die Etage.
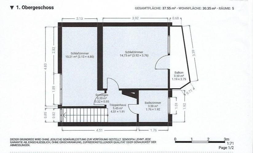
Im Obergeschoss befinden sich zwei gut geschnittene Zimmer, die sich flexibel als Schlafzimmer, Kinderzimmer oder Homeoffice nutzen lassen.
Von dem Schlafzimmer aus haben Sie zudem Zugang zu einem Balkon mit Blick in die grüne Umgebung.
Das Badezimmer mit Fenster ist mit einer Badewanne ausgestattet.
Das Haus ist voll unterkellert und bietet damit reichlich Stauraum sowie Platz für Hobbys, Vorräte oder eine kleine Werkstatt.
Insgesamt befindet sich die Immobilie in einem größtenteils dem Baujahr entsprechenden Zustand.
Mit Modernisierungen können Sie diesem Haus neuen Glanz verleihen und es nach Ihren eigenen Vorstellungen gestalten.
Die Energieeffizienz entspricht den für das Baujahr üblichen Standard. Zusätzliches Potential ist vorhanden.
Ausstattung
- Baujahr 1961
- ca. 55 m² Wohnfläche
- Grundstücksgröße: ca. 153 m² (eigenes Flurstück) zzgl. Miteigentumsanteile an gemeinschaftlich genutzten Flächen.
- Privater Gartenanteil: ca. 100 m².
- Voll unterkellert (trockene Räume mit viel Stauraum)
- Terrasse und eigener Garten
- Balkon im Obergeschoss mit Blick ins Grüne
- Tageslichtbad mit Wanne
- Gäste-WC im Erdgeschoss
- Zwei Schlafzimmer im Obergeschoss
- Helles Wohnzimmer mit Gartenzugang
- Öl-Heizung
Flächenangaben (ca.):
Nutzfläche: zusätzliche Keller-/Abstellräume (genaue Angabe folgt)
Grundstücksgröße: ca. 153 m² inkl. anteiliger Gemeinschaftsflächen (laut Grundbuch/Kataster)
Sonstiges
Das Reihenhaus ist lastenfrei von Rechten Dritter, abgesehen von den üblichen Reihenhausregelungen (Brandmauer, Leitungsrechte, gemeinschaftliche Zuwegungen), wie sie in der gesamten Siedlung bestehen.
Hinweis: Alle Angaben stammen vom Eigentümer. Für deren Richtigkeit und Vollständigkeit übernehmen wir keine Gewähr. Dieses Exposé dient ausschließlich der Vorabinformation. Rechtsverbindlich sind allein die Vereinbarungen im notariellen Kaufvertrag.
Der Maklervertrag kommt durch schriftliche Vereinbarung oder durch die Inanspruchnahme unserer Maklertätigkeit auf Grundlage dieses Exposés und seiner Bedingungen zustande.
Sofern das von uns angebotene Objekt bereits bekannt ist, bitten wir um kurze Mitteilung.
Die Käufer- und Verkäufercourtage beträgt jeweils 3,57 % inkl. gesetzlicher Mehrwertsteuer, insgesamt 7,14 % des Kaufpreises, und ist bei notariellem Vertragsabschluss fällig.
Lage
Die Immobilie befindet sich in einer ruhigen Wohngegend im nördlichen Berlin-Reinickendorf, umgeben von gepflegten Einfamilienhäusern sowie kleineren Mehrfamilienhäusern.
Die Umgebung ist grün, familienfreundlich und bietet ein angenehmes, nachbarschaftliches Wohngefühl. Einkaufsmöglichkeiten für den täglichen Bedarf, Apotheken, Ärzte sowie verschiedene Schulen und Kitas sind in wenigen Minuten erreichbar.
Auch größere Einkaufszentren befinden sich in der Nähe.
Für Erholung und Freizeit sorgen die zahlreichen Grünflächen und Parks der Umgebung – unter anderem der Steinbergpark, einer der schönsten Landschaftsparks Berlins, sowie das Tegeler Fließtal und der Tegeler See.
Hier lassen sich Spaziergänge, Fahrradtouren oder entspannte Stunden im Grünen genießen.
Die Anbindung an den öffentlichen Nahverkehr ist sehr gut: Bus- und U-Bahnlinien bringen Sie zügig in die Berliner Innenstadt.
Über die nahen Zufahrten zur Stadtautobahn sowie die Bundesstraßen ist auch mit dem Auto eine schnelle Verbindung in alle Teile der Stadt gewährleistet.
Die ungefähre Position der Immobilie auf Google Maps ansehen (Link auf externe Website)































